kamagra gel kaufen schweiz
kamagra preis schweiz
kamagra schweiz zürich
viagra generika preis schweiz
kamagra illegal schweiz
kamagra kaufen schweiz online
viagra ohne rezept schweiz
viagra rezeptfreie schweiz kaufen
Facebook
Accueil
Réservations
Réservations
Newsletter
Carte spectateur-trice
Evénements
La parfumerie
Espaces
Location / Projets artistiques
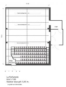
Fiche Technique
L’association de la Parfumerie
Historique du lieu
Saison 2017-2018
Saison 2008-2009
Contact et plan d’accès
Rechercher
Menu
Menu
Théâtre de la Parfumerie
Grand-café de la Parfumerie
Matériel de la Parfumerie
Faire défiler vers le haut